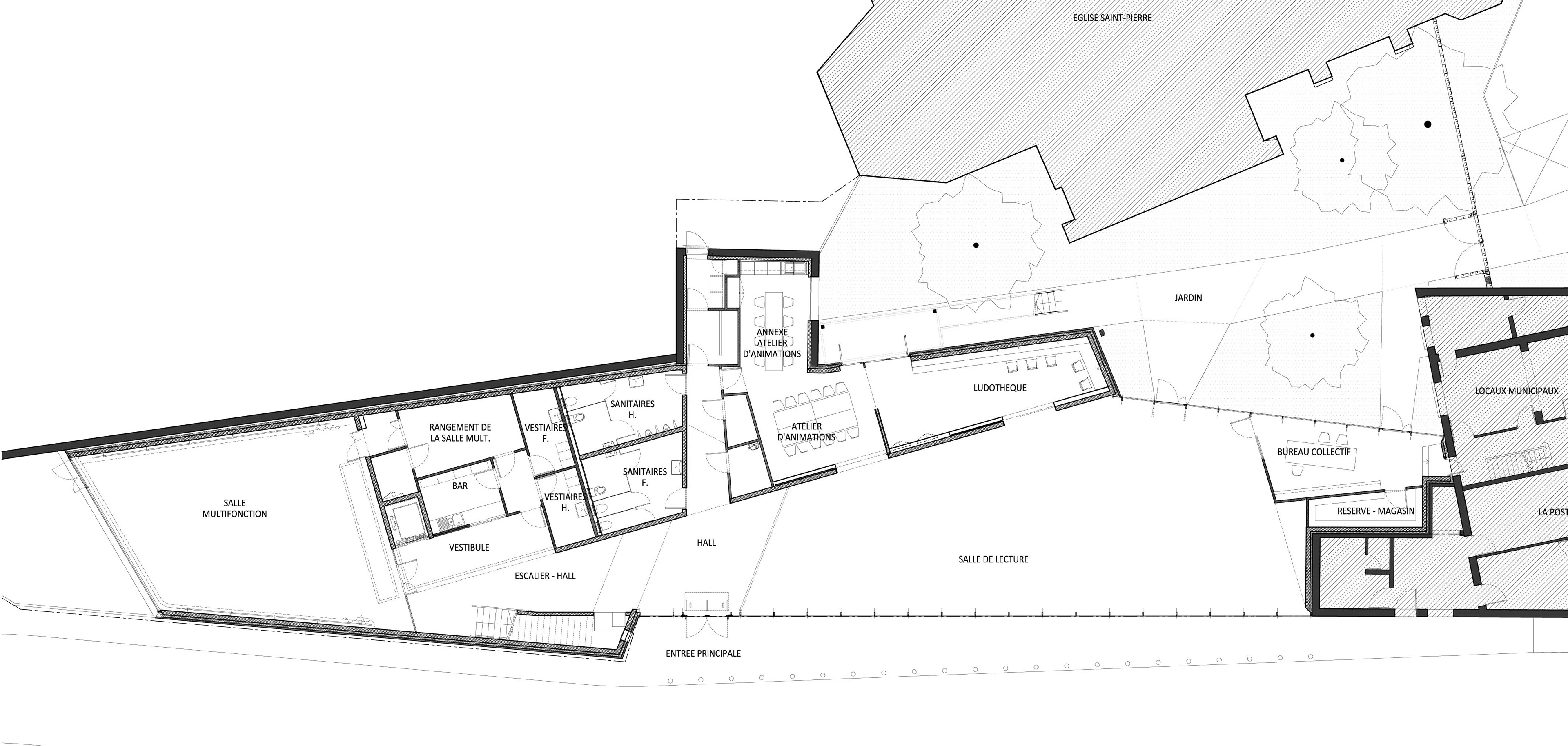
Programme : Médiathèque pluridisciplinaire Bibliothèque, Ecole de danse, Ecole de musique et Salle multifonction Lauréat du prix d'architecture "Les Beffrois de la création" 2015 Labellisation RT2012 Surface : 752m² (SU) / Budget : 1 831 486 € Maîtrise d’ouvrage : Ville de Meurchin Maîtrise d’œuvre : Wonk Architectes, Projex ingénierie, Diagobat Concours / Lauréat Mission complète / Livré 2015 Photographies : Guillaume Guérin