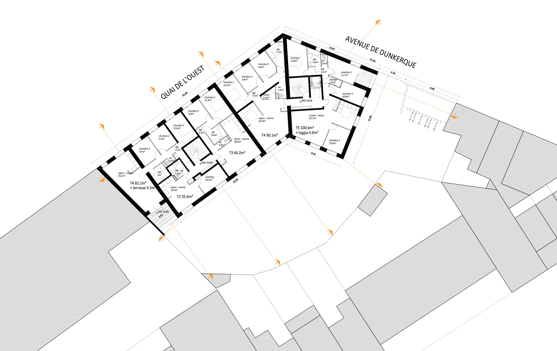
QUAI DE L'OUEST, LILLE
Programme : 20 logements locatifs sociaux Labellisation RT2012 I Certification Qualitel et H&E Surface : 1 335m² SDP / Budget : 1 689 500 € HT Maîtrise d’ouvrage : Lille Métropole Habitat Maîtrise d’œuvre : Wonk Architectes, Projex Ingénierie, Diagobat Mission complète / Livré Janvier 2021