







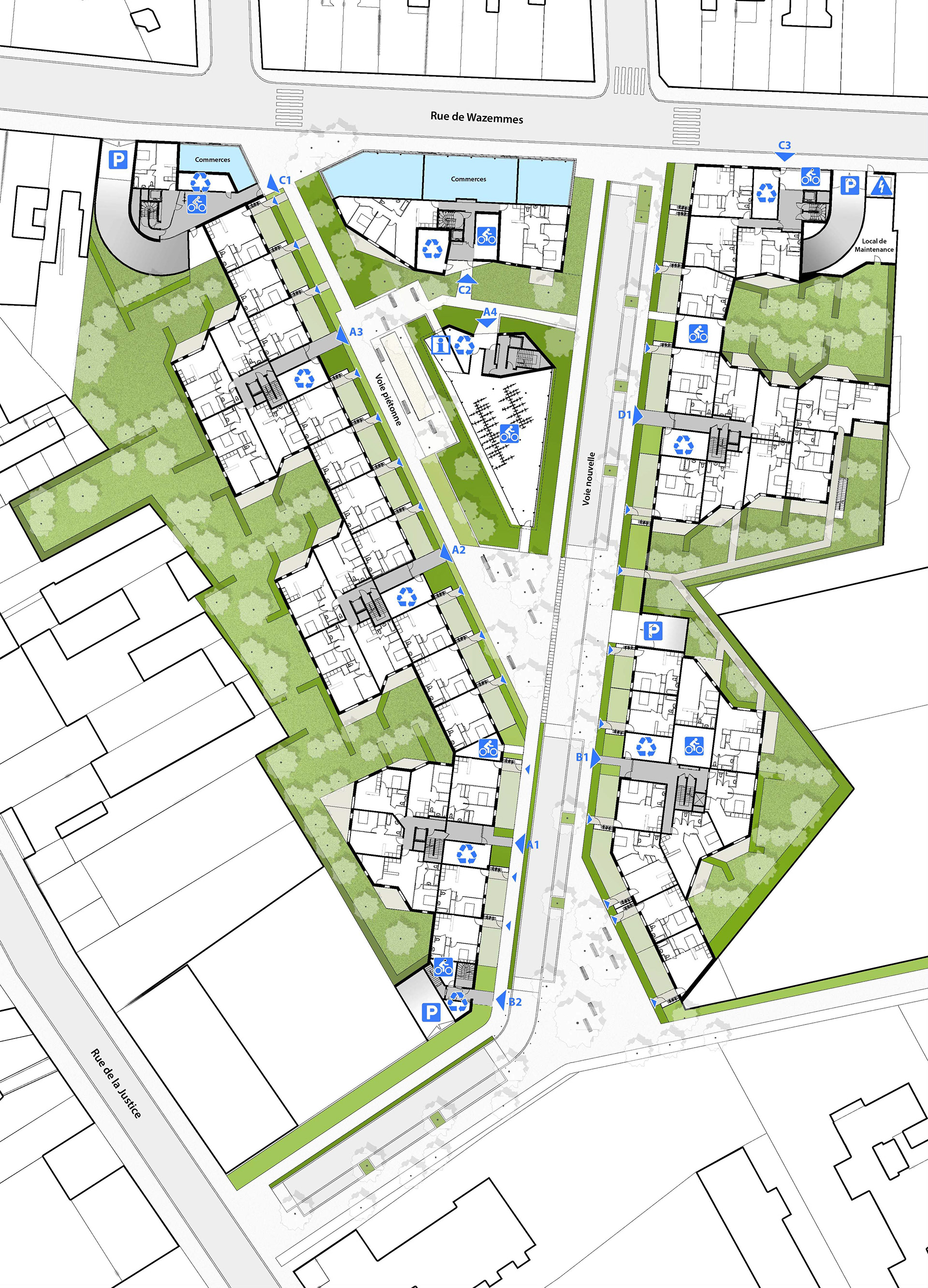
Programme : Construction de 269 logements collectifs et commerces Surface : 17 796m² SDP (dont 300m² de commerces) Budget : 23 441 931 € HT Maîtrise d’ouvrage : BPD Bouwfonds Marignan Maîtrise d’œuvre : Wonk Architectes, Olgga Architectes (Mand.), Leblanc Vénacque, Projex , Diagobat Concours / 2015 (Classé second) Images : Johan Ong